Leave a Message

Thank you for your message. We will be in touch with you shortly.

555 Pacific Street
555 Pacific Street
555 Pacific Street
555 Pacific Street
555 Pacific Street
555 Pacific Street
555 Pacific Street
555 Pacific Street
555 Pacific Street
555 Pacific Street
555 Pacific Street
555 Pacific Street
555 Pacific Street
555 Pacific Street
555 Pacific Street
555 Pacific Street
555 Pacific Street
555 Pacific Street
555 Pacific Street
555 Pacific Street
555 Pacific Street
555 Pacific Street
555 Pacific Street
555 Pacific Street
555 Pacific Street
555 Pacific Street
555 Pacific Street
555 Pacific Street
555 Pacific Street
SEE ALL PHOTOS
555 Pacific Street
555 Pacific Street
555 Pacific Street
555 Pacific Street
555 Pacific Street
555 Pacific Street
555 Pacific Street
555 Pacific Street
555 Pacific Street
555 Pacific Street
555 Pacific Street
555 Pacific Street
555 Pacific Street
555 Pacific Street
555 Pacific Street
555 Pacific Street
555 Pacific Street
555 Pacific Street
555 Pacific Street
555 Pacific Street
555 Pacific Street
555 Pacific Street
555 Pacific Street
555 Pacific Street
555 Pacific Street
555 Pacific Street
555 Pacific Street
555 Pacific Street
555 Pacific Street
In Contract

555 Pacific Street

555 PACIFIC Street, Brooklyn, NY 11217

$3,265,000

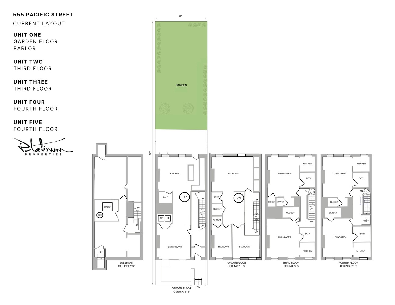
Welcome to 555 Pacific Street, a beautifully preserved FULLY VACANT brownstone in prime Boerum Hill. This stout, extra-wide building is an opportunity to blend the heritage of Brooklyn brownstone living with the convenience of contemporary BK. Owners can transform the entire building into the single-family home of their dreams. Savvy developers can convert to condos, such as a decadent duplex over an expansive triplex.

The building is the tallest on the block, standing nearly 44' tall. It sits on an oversized 21-feet wide lot and possesses buildable floor area for expansion, making for near limitless opportunities. The 1910 structure currently spans five levels and 3,360 square feet of livable space. Unused FAR allows an additional 420 square feet for a potential final product with 4,800 square feet of total indoor area to enjoy.The excellent condition of the exterior highlights the key components for a successful renovation. In place are high parlor ceilings of 11'3" and exceptionally tall top floor height of 8'10. Very significant is the presence of a fully dug cellar with 7'3" ceilings already in place.

The astute homeowner or developer will also appreciate the original fixtures and Art Deco details found throughout, such as original glass and tile work, built-in cabinetry and a banister in exceptional condition. Small details with significant importance also include unusually level floors for a townhouse of this age, reducing renovation costs for the next owner.Picture yourself entering a stunning open-concept garden level living room with ceilings soaring 20 feet above. Imagine entering the upper floor extension to find the primary bedroom you've always dreamed of. The south facing facade provides you exceptional light year round. The 1,050-square-foot garden is a lush and private outdoor escape - ideal for entertaining or relaxing.

Incredible outdoor space with views of historic BK and the towers ascending in DTBK await.Rarely does a property like 555 Pacific Street come to market-with its historic integrity, expansion potential, and location near Park Slope, Prospect Heights, Fort Greene, Cobble Hill and booming Gowanus. Do not miss the unique chance to own a true piece of Brooklyn's architectural legacy and to guide its future.The property is currently fully vacant and can be shown at any time. Call to schedule today.Images of existing property are virtually staged. Architect renderings are marked.

7
beds

6
baths

3,360 Sq.Ft. LIVING AREA

1,890 Sq.Ft. lot

Marisol Martinez

Marisol Martinez

Additional Features and Amenities

Interior

  • total bedrooms7
  • Total bathrooms6
  • full bathrooms6
  • Laundry room Building Other
  • other interior Features High Ceilings, Smoke Free

Area & Lot

  • Status In Contract
  • Living Area3,360 Sq.Ft.
  • Total Area3,360 Sq.Ft.
  • Lot Area1,890 Sq.Ft.
  • MLS® IDRLS20047646
  • TypeTownhouse
  • YEAR BUILT1910
  • NeighborhoodBoerum Hill
  • View DescriptionOther

Exterior

  • STORIES1
  • other exterior FeaturesPrivate Outdoor Space Over 60 Sqft

Financial

  • Sales Price$3,265,000
  • Real Estate Tax $21,348/yr
image

Schedule a Showing

We would love to show you our beautiful property. Please select your preferred date and time below. An agent will be in touch shortly to confirm your appointment.

Schedule a Showing

We would love to show you our beautiful property. Please select your preferred date and time below. An agent will be in touch shortly to confirm your appointment.

Thank you for your interest in 555 PACIFIC Street, Brooklyn, NY 11217. We are reviewing your request and will be in touch shortly!

Follow Me on Instagram